[3-130]
Stangenschloss FS PrC












Vorteile
- Für Einbauöffnung C.
- Stangenschloss zum Einbau innerhalb des Dichtungsbereiches von Gehäusen.
- Ausrüstbar mit Schlüsselschild, Griffelementen oder Schwenkhebel.
- Durch Wenden rechts / links einsetzbar.
- Erdung durch Erdungsfeder (optional).
Werkstoffe
- Gehäuse: GDZn, roh oder PA, schwarz
- Ritzel: GDZn
- Stangen: Stahl, verzinkt
Anmerkungen
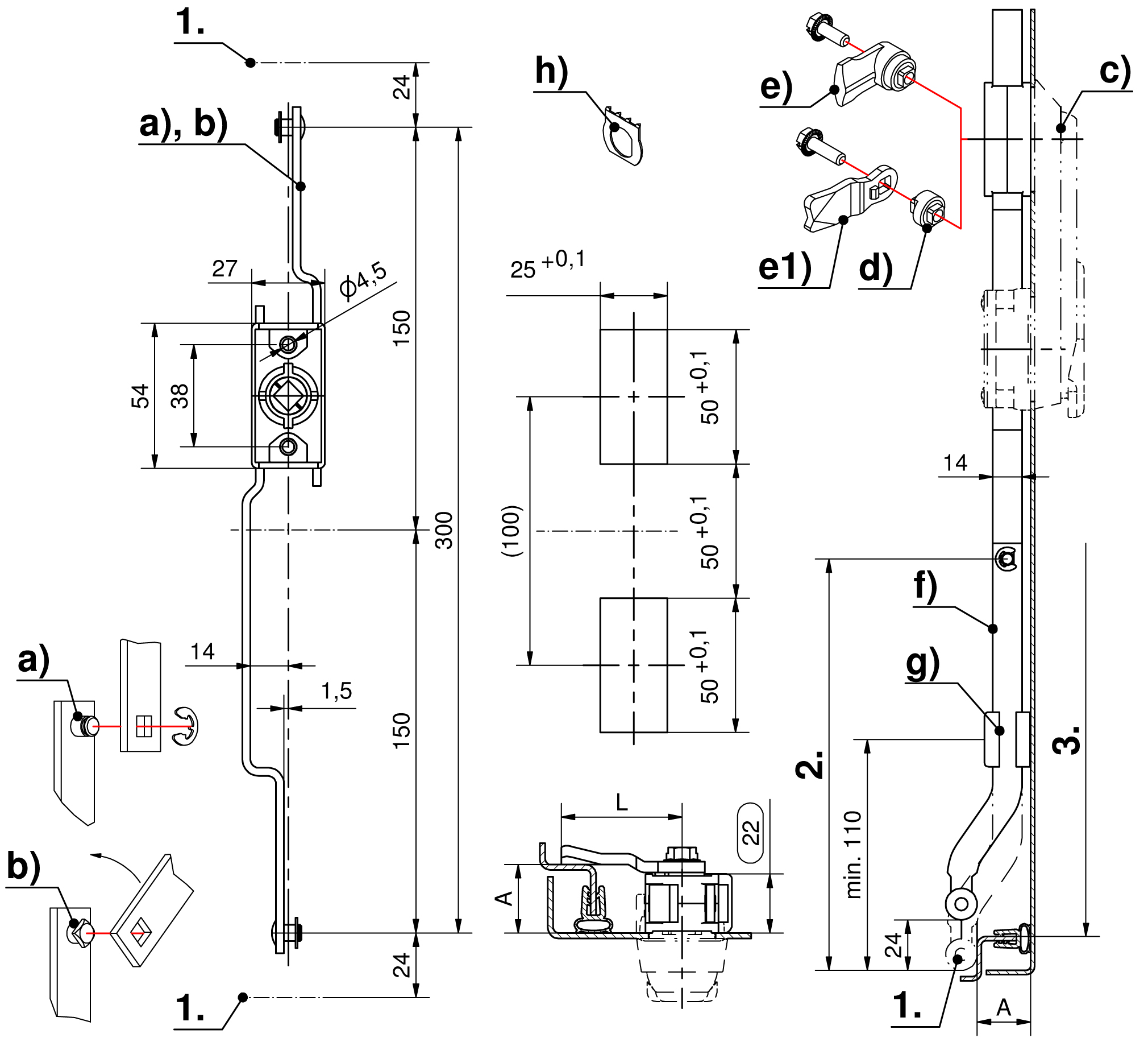
1. Hub 24mm2. Länge L
3. Lichte Höhe
Verfügbare Ausführungen
Stangenschloss
Produktnummer
Material
Stangenbefestigung
Montageart
Liefereinheit
a)
208-9002.00-00000
GDZn
Sicherungsring
anschraubbar
1 Stck
a)
208-9052.00-00000
PA
Sicherungsring
anschraubbar
1 Stck
b)
208-9003.00-00000
GDZn
Schnellbefestigung
anschraubbar
1 Stck
b)
208-9053.00-00000
PA
Schnellbefestigung
anschraubbar
1 Stck
Zugehörige Produkte
Zubehöre