[2-078DST]
DST Swinghandle RS 110
















Advantages
- Low profile design.
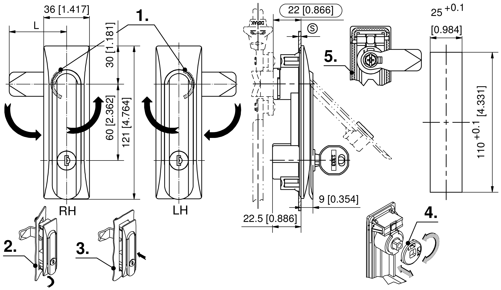
- The pre-assembled swinghandle (single or 3-point cam) can simply be snapped into the cutout. (2./3.)
- 90° closing rotation. (1.)
- Key Cylinder DIRAK 1333 with stainless steel dust cap and 1 key with synthetic coated grip.
- IP65 according to DIN EN 60529 by captive sealing. (5.)
- RH / LH application is achieved by an adjustable cam stop. (4.)
Material
- Swinghandle: zinc die, black
- Dish: PA, black
- Seal: TPE
- Stop: zinc die, zinc plated
Remarks
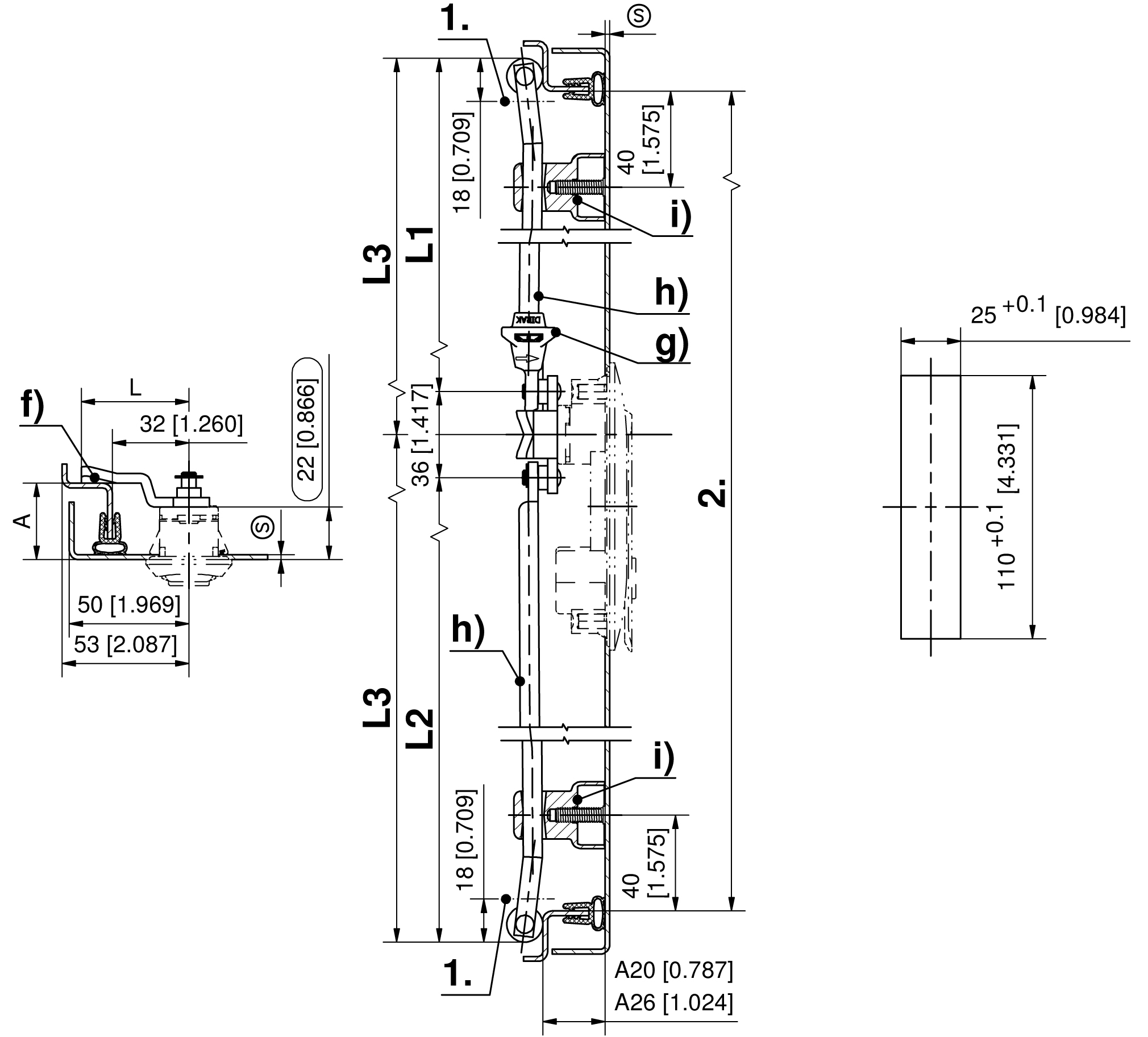
H-dimension of cam ≥10mmDrawings for rod calculation:
1. stroke 18mm
2. clearance
Available versions
Swinghandle with key cylinder
Product number
Clamping range (S)
Latching type
Installation type
Delivery Unit
407-9602.00-00015
1.2 mm - 1.7 mm
keyed alike DIRAK 1333
clip-in
1 pc.
407-9602.00-00020
1.7 mm - 2.2 mm
keyed alike DIRAK 1333
clip-in
1 pc.
407-9602.00-00025
2.2 mm - 2.7 mm
keyed alike DIRAK 1333
clip-in
1 pc.
Related Products
Accessories