[2-103]
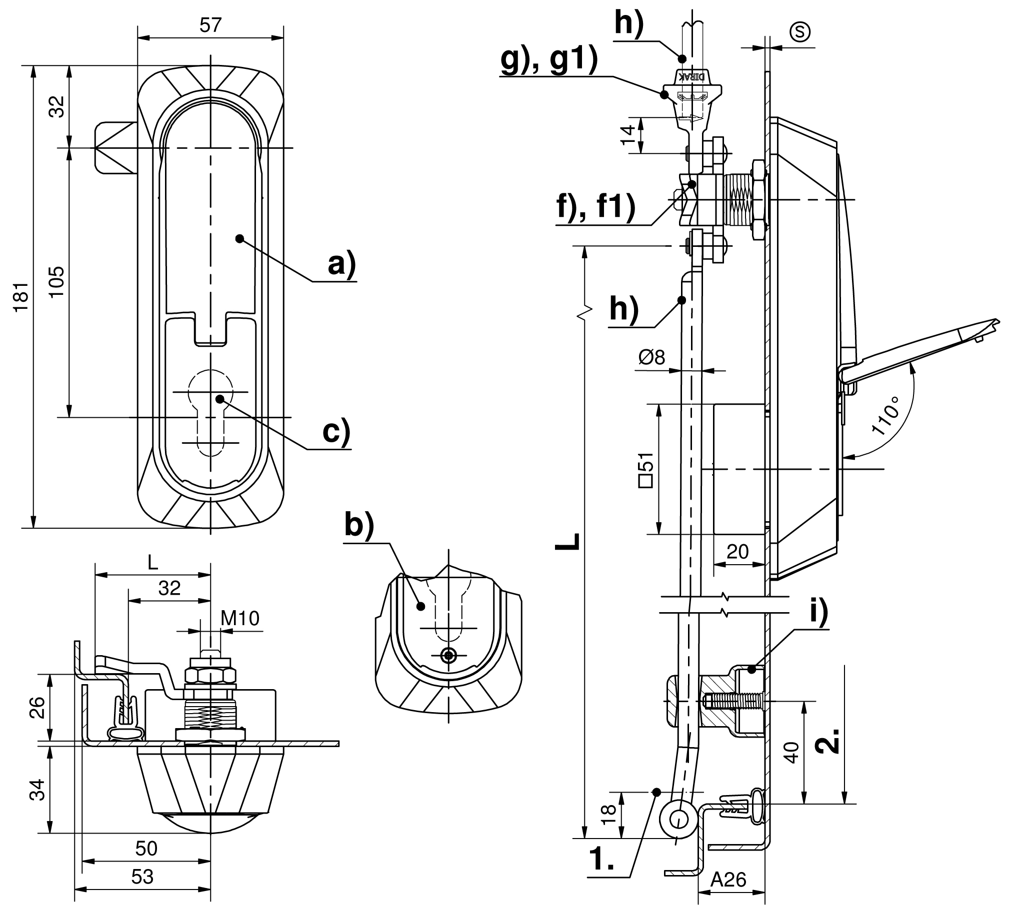
Schwenkhebel GDZn RS 105 für PHZ, RC2




































Vorteile
- Federgelagerter aufspringender Griff.
- 90° Schließweg.
- Für Profil-Halbzylinder 40 und 45mm Länge.
- Zylinderabdeckung magnetisch gesichert.
- Durch eine Falle gegen Aufbruch gesichert.
- Sicherheitsgetestet analog DIN EN 1630 RC2.
Nur in Verbindung mit Profil-Halbzylindern nach DIN 18252. - Erdbebensicher nach GR-63-CORE, Issue 4.
- Rüttel- und vibrationssicher nach DIN EN 61373.
- IP65 nach DIN EN 60529.
- Rechts / links einsetzbar.
Werkstoffe
- Schwenkhebel, Mulde und Abdeckung und Kappe: GDZn, schwarz
Anmerkungen
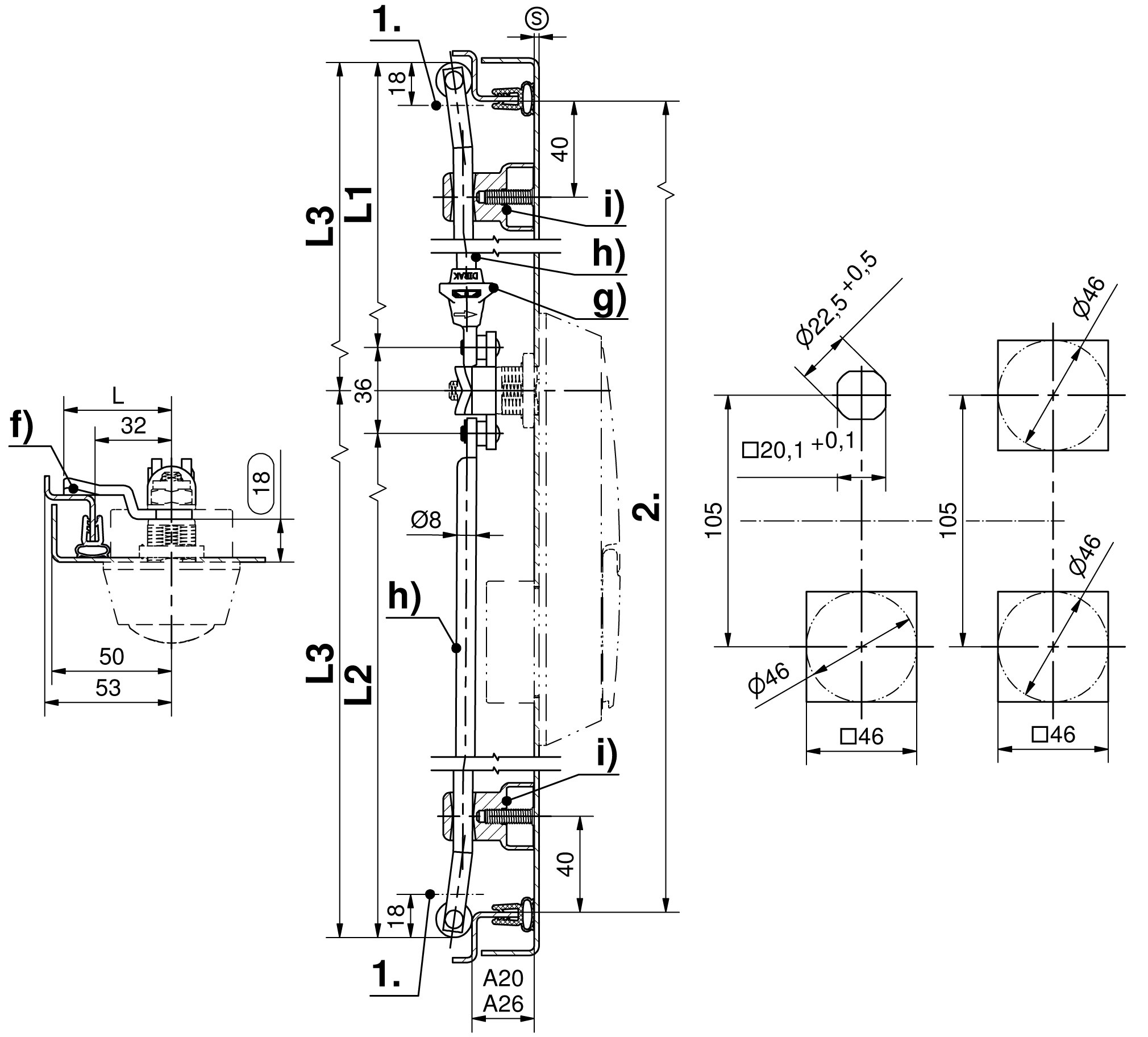
(S) Türstärke max. 3mmZeichnungen für Stangenberechnung (siehe Zubehör):
1. Hub 18mm
2. Lichte Höhe
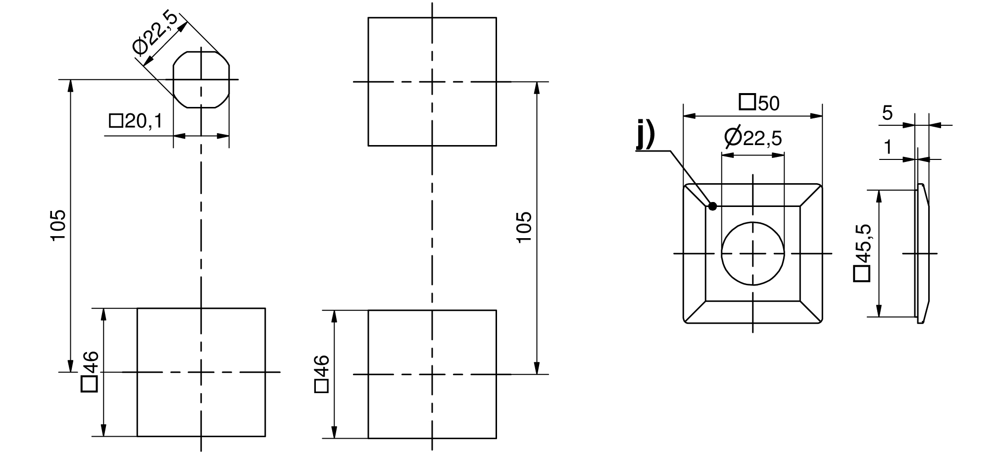
Um rechte und linke Türen gleich zu gestalten, sind auch 2 Ausbrüche mit □46, symmetrisch zur Türmitte möglich.
Profilhalbzylinder und deren Montage müssen separat bestellt werden.
Verfügbare Ausführungen
Schwenkhebel
Produktnummer
Kappe innen
Material Zylinderabdeckung
Montageart
Liefereinheit
a)
207-9130.00-00000
□46
GDZn
anschraubbar
1 Stck
b)
207-9131.00-00000
□46
GDZn, verschraubbar
anschraubbar
1 Stck
Zugehörige Produkte
Zubehöre