Zum Hauptinhalt springen Zur Suche springen Zur Hauptnavigation springen
[4-182]

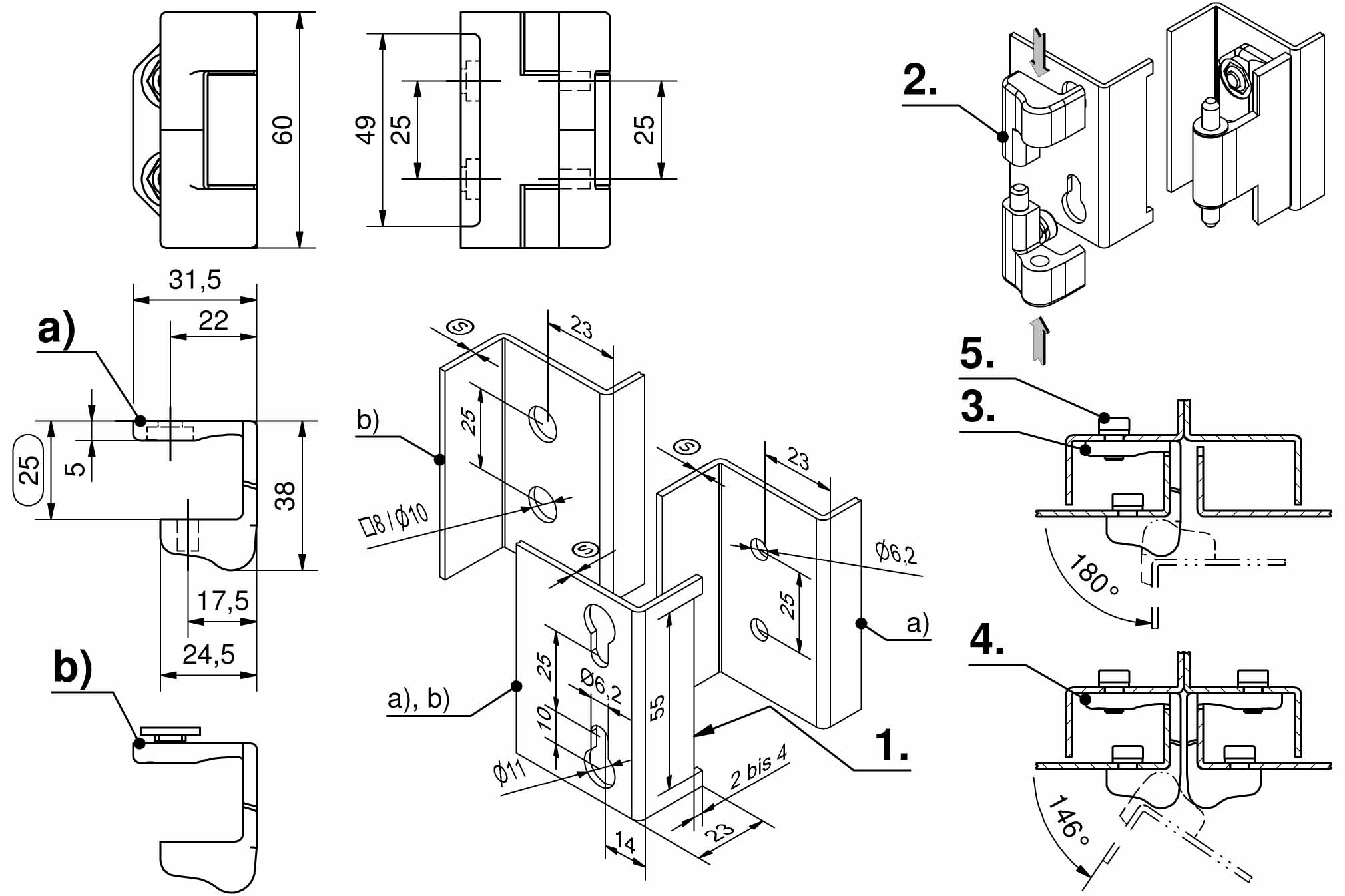
Scharnier Pr05 180°

ICON_HINGE_SERIES_Pr05
ICON_ROHS
ICON_TUERANSCHLAG_LR
ICON_LIFT_OFF
ICON_180_GRAD

Verfügbare Ausführungen

Kontakt linkedIn Youtube