[3-311]
Rods and Accessories FS OFFSET-DUO-3








Advantages
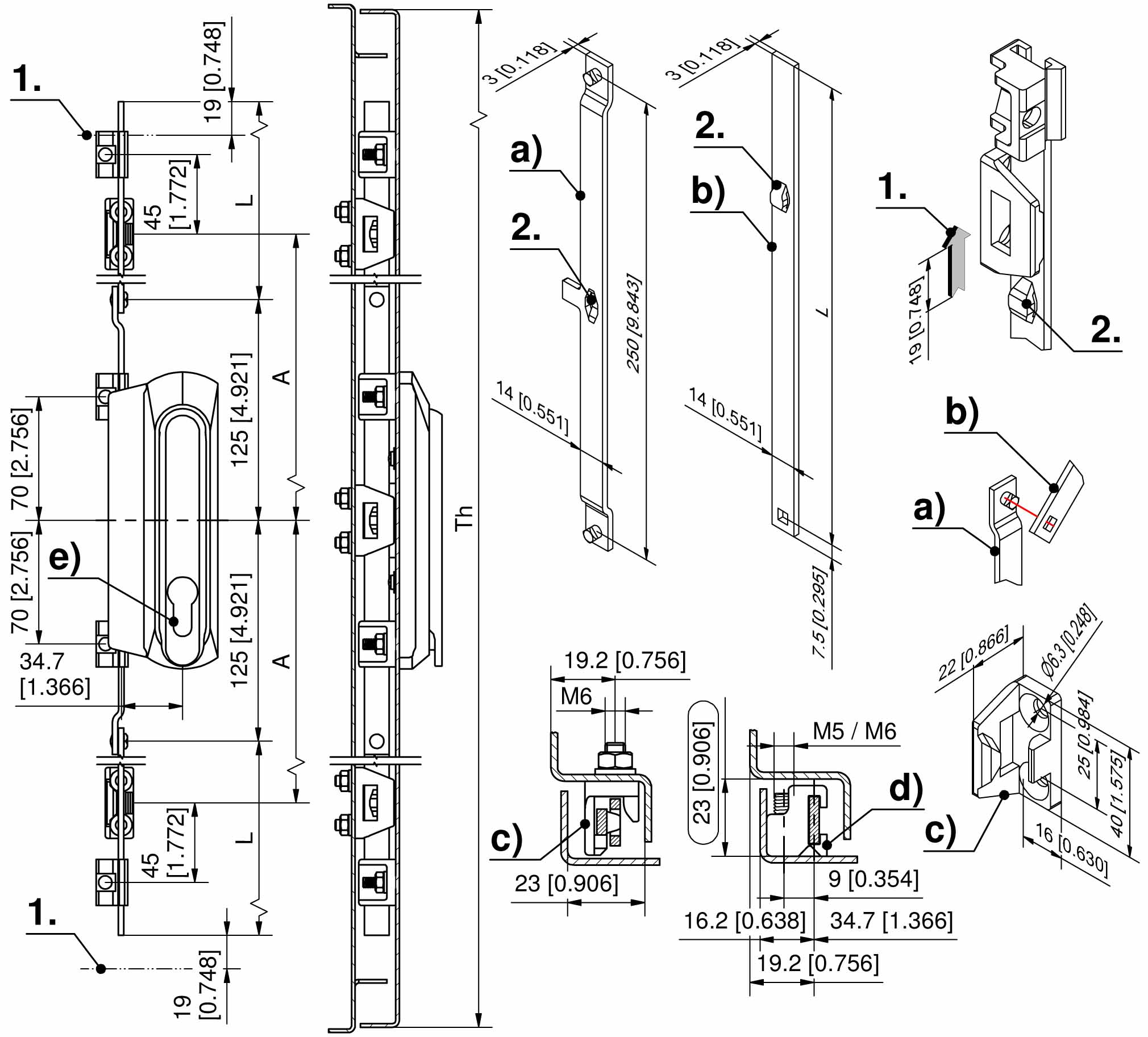
- We show a typical 3-point system for a RH door. All rods run exactly in line and the lower rod is starting from the doorcenter, exactly symmetrical to the upper rod (not shown).
- As the fitting positions of the latching hooks are identical to those of the hinges, the door can be installed RH or LH.
- Depending on the installed rod guides and hinges, a minimal frame width of 30mm is possible.
- Quick-fit.
Material
- Rods: steel, zinc plated
- Latching hook: zinc die
Remarks
1. stroke 19mm2. latching tab
Driving rod - per latching system order 1 unit.
Extension rods - per latching system order 2 units.
Latching hooks have to be ordered separately - for quantity please see table.
Flat rods b) on request
Latching rods and accessoires for application with swinghandles OFFSET-DUO-3, product system 3-310.
Selected version
Product number | 307-9001.00-00000 |
Delivery Unit: | 10 pcs. |
Type: | Central controlling rod |
L: | 250 mm |
Related Products
Accessories
Article no.
Name
d)
208-1509.03-00000
Rod guide PA , 1-part, M5
Details
Name:
Rod guide PA , 1-part, M5
Fastening type:
M5
Material:
PA
Delivery Unit:
1 pc.
d)
208-1517.03-00000
Rod guide PA , 1-part, M6
Details
Name:
Rod guide PA , 1-part, M6
Fastening type:
M6
Material:
PA
Delivery Unit:
1 pc.
307-9001.00-00000
Central controlling rod
Details
Type:
Central controlling rod
Door height Th:
Distance hook A:
Quantity latching hooks:
L:
250 mm
Delivery Unit:
10 pcs.
Product Configuration
Selected version
Product number | 307-9001.00-00000 |
Delivery Unit: | 10 pcs. |
Type: | Central controlling rod |
L: | 250 mm |
Selected additional products
[none] |