Skip to main content Skip to search Skip to main navigation
[4-326]

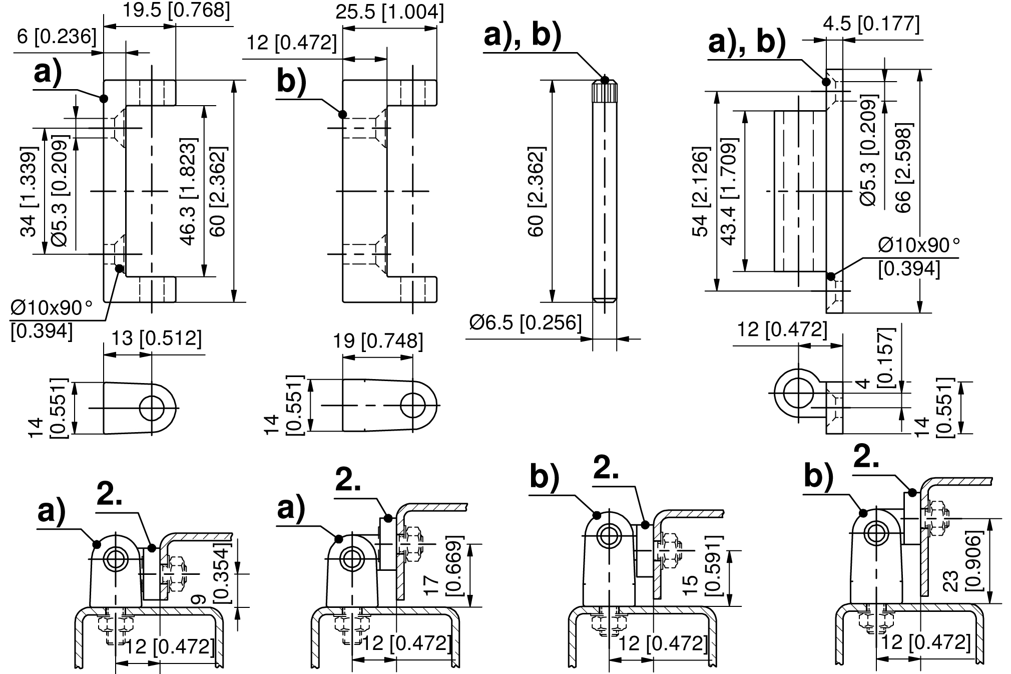
Corner Hinge Pr04 180°

ICON_HINGE_SERIES_Pr04
ICON_ROHS
ICON_TUERANSCHLAG_LR
ICON_180_GRAD
Contact linkedin YouTube