[7-040]
Rod Latch FS PrC Stainless Steel













Advantages
- For cutout C.
- For application within the sealed area.
- The latch can be used with escutcheon, handles or swinghandle.
- Fire protection tested with E60 classification according to DIN EN 45545-3.
- Grounding by grounding clip (optional).
- RH / LH application through double symmetry.
Material
- Housing: AISI 316
- Rods: AISI 304
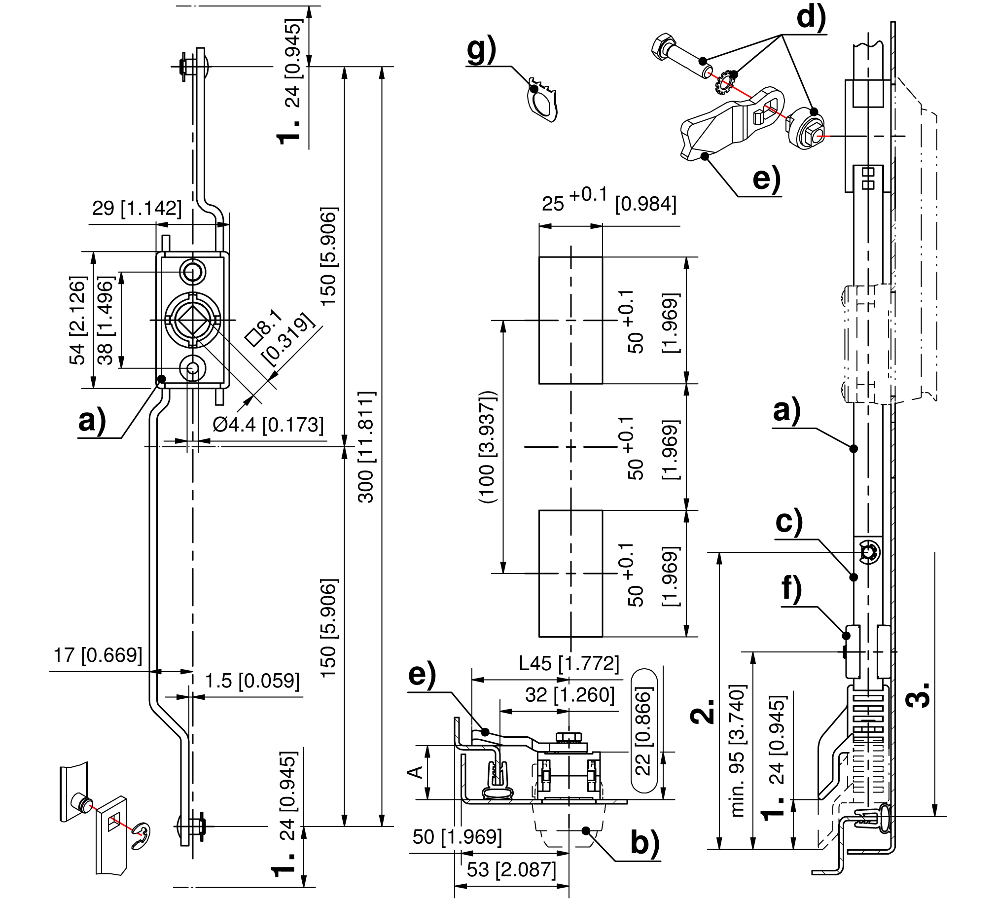
Remarks
1. stroke 24mm2. length L
3. clearance
Available versions
Rod latch
Product number
Rod fastening
Installation type
Delivery Unit
a)
208-9024.00-00000
C-clip
screw-on
1 pc.
Related Products
Accessories