[3-132.01]
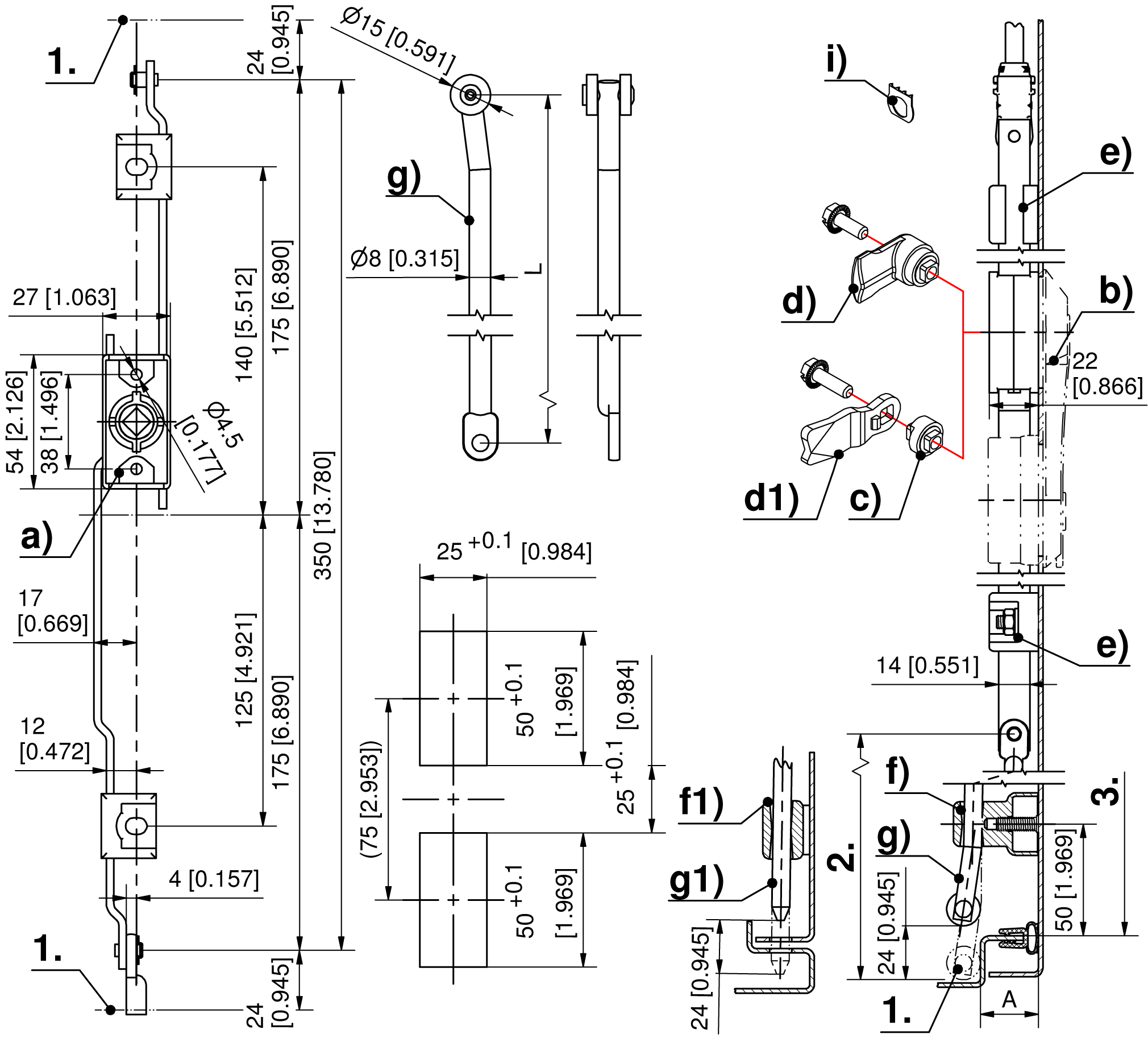
Rod Latch RS PrB












Advantages
- For cutout B.
- For application within the sealed area.
- Can be equipped with escutcheon or swinghandel.
- RH / LH application through double symmetry.
- In this configuration both round rods have the same length.
- The 4 weld-studs for the rod guides are positioned exactly in the line with the center of the latch system.
- Grounding by grounding clip (optional).
Material
- Rod latch: zinc die, untreated / steel, zinc plated
Remarks
1. stroke 24mm2. length L
3. clearance
Both flat rods of the rod latch have to be used with rod guides (e).
Available versions
Rod latch
Product number
Rod fastening
Installation type
Delivery Unit
a)
208-9016.00-00000
C-clip
screw-on
1 pc.
Related Products
Accessories