[7-070]
Flat Rods FS Stainless Steel








Advantages
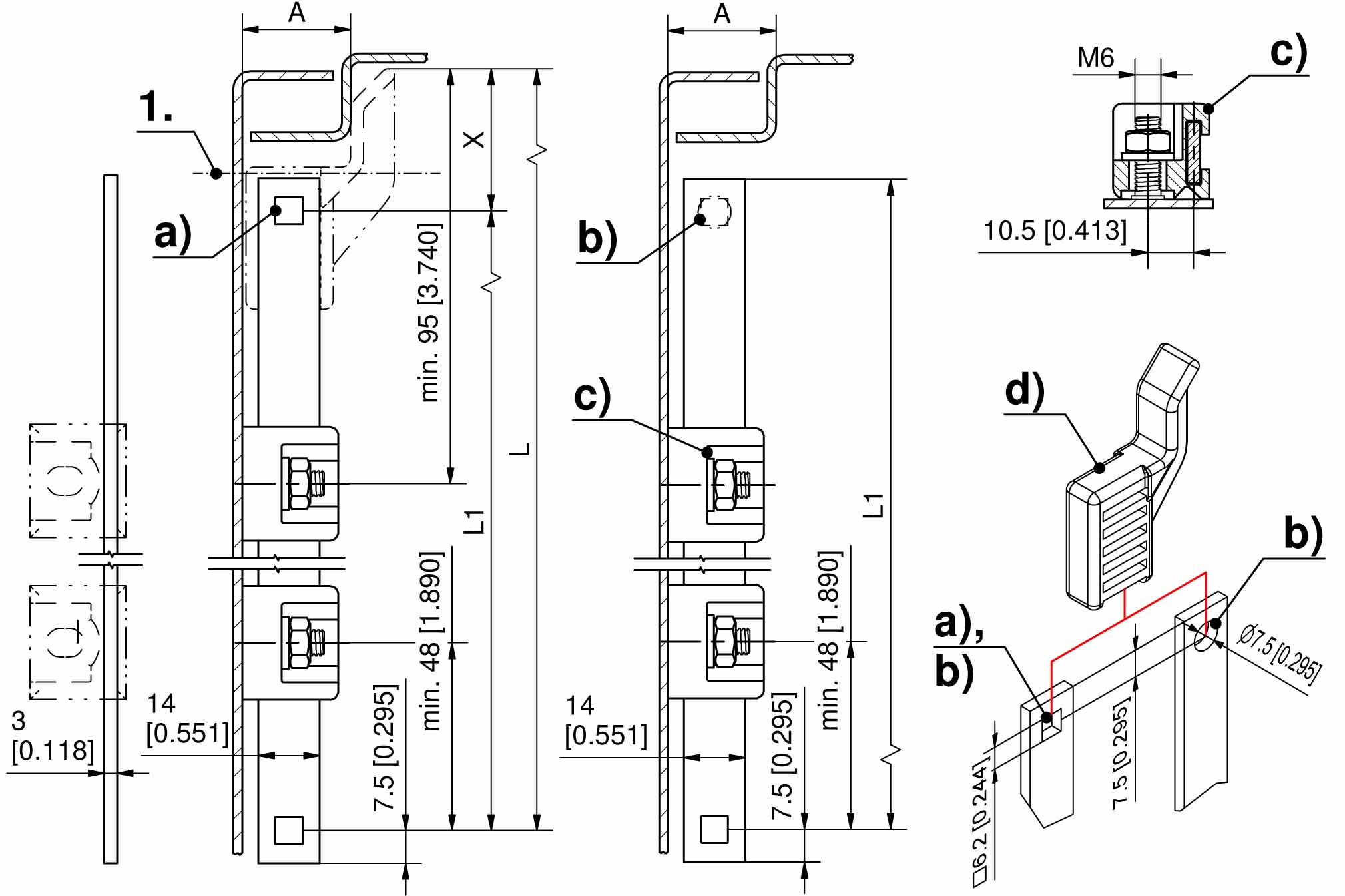
- Flat rods for ramp-shoe 3-162.
- Version a) With two square holes 6.2mm.
- Calculation of the rod length: L1 = center of square to center of square.
- Version b) With one square hole 6.2mm for self cutting. These flat rods are specially designed to allow for custom length rods.
- Calculation of the rod length: L1 = center of square to end of rod.
- The top of the flat rod can be provided with a square 6.2mm or a round Ø7.5mm hole as shown in figure.
Material
- Flat rod: AISI 304
Remarks
1. strokedimension x - see product system 3-162
DIRAK recommends 2 rod guides for rods with length greater than 200mm.
Selected version
Product number | 208-0934.04-Lxxmm |
Delivery Unit: | on request |
Square hole: | 2x 6.2mm |
Related Products
Assembly options
Article no.
Name
208-0014.00-00000
Assembling of ramp-shoe
Accessories
Article no.
Name
c)
208-1501.03-00000
Rod guide PA , 1-part, M6
Details
Name:
Rod guide PA , 1-part, M6
Fastening type:
M6
Material:
PA
Delivery Unit:
1 pc.
c)
208-1509.03-00000
Rod guide PA , 1-part, M5
Details
Name:
Rod guide PA , 1-part, M5
Fastening type:
M5
Material:
PA
Delivery Unit:
1 pc.
c)
208-1517.03-00000
Rod guide PA , 1-part, M6
Details
Name:
Rod guide PA , 1-part, M6
Fastening type:
M6
Material:
PA
Delivery Unit:
1 pc.
c)
208-9790.00-00000
Rod guide stainless steel, 2-parts, M6
Details
Name:
Rod guide stainless steel, 2-parts, M6
Fastening type:
M6
Material:
stainless steel
Delivery Unit:
1 pc.
c)
208-9791.00-00000
Rod guide zinc die, 2-parts, M6
Details
Name:
Rod guide zinc die, 2-parts, M6
Fastening type:
M6
Material:
zinc die
Delivery Unit:
1 pc.
c)
208-1523.54-00000
Rod guide
Details
Version:
for flat rod
Installation type:
tool-less
Delivery Unit:
1 pc.
d)
208-2403.03-00018
Ramp-shoe, bending A18
Details
A = bending:
A18
Dimension X:
32,5 mm
Installation type:
tool-less
Delivery Unit:
1 pc.
d)
208-2403.03-00020
Ramp-shoe, bending A20
Details
A = bending:
A20
Dimension X:
32,5 mm
Installation type:
tool-less
Delivery Unit:
1 pc.
d)
208-2403.03-00025
Ramp-shoe, bending A25
Details
A = bending:
A25
Dimension X:
32,5 mm
Installation type:
tool-less
Delivery Unit:
1 pc.
d)
208-2402.03-00023
Ramp-shoe, bending A23
Details
A = bending:
A23
Dimension X:
22 mm
Installation type:
tool-less
Delivery Unit:
1 pc.
Product Configuration
Selected version
Product number | 208-0934.04-Lxxmm |
Delivery Unit: | on request |
Square hole: | 2x 6.2mm |
Selected additional products
[none] |